- Nom du projet
- Centre de méditation
- Localisation
- Espoey (64)
- Client
- Privé
- Fonction
- Équipement public
- Statut
- Non réalisé
- Calendrier
- 2020
- Collaborateur
- Staterra Architecture (mandataire) + Mazzi Architecture
- Partenaire
- BE structure Maya + BE Fluides Odetec
- Mission
- Permis de construire
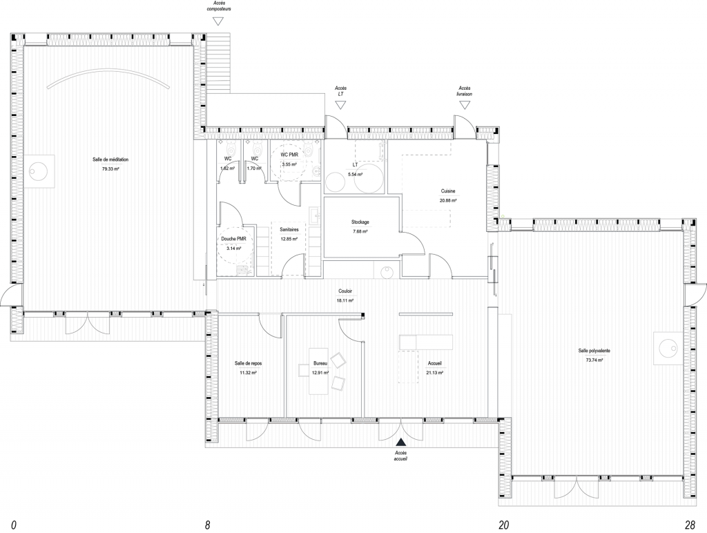
Au pied des Pyrénées, le projet prend place sur une parcelle vierge de toute construction, en limite de zone agricole.
Le souhait de la maitrise d’ouvrage consiste en la construction neuve d’un centre de méditation en conception bioclimatique passive, tout en employant au mieux les ressources du terrain. Le bâtiment se compose de deux grandes salles, accueillant les espaces de méditation et d’activités, situées de part et d’autre d’un volume central pour l’accueil et les locaux techniques, sur une surface totale de 800 m². Les parois extérieures à ossature bois sont remplies de bottes de paille afin d’obtenir une isolation performante et de favoriser le circuit court. A l’intérieur, des murs de refend sont proposés en terre crue, suivant la technique du pisé, pour capter la chaleur, réguler la température et l’hygrométrie des espaces. Une pergola est aménagée en façade sud pour prévenir de la surchauffe éventuelle des vitrages et d’assurer le confort estival des usagers.





