- Nom du projet
- Maison kerlochet
- Localisation
- Crac'h
- Client
- Client privé
- Fonction
- Habitat
- Statut
- Livré
- Calendrier
- 2022
- Programme
- Restructuration lourde d'une longère bretonne
- Mission
- Complète
- Photographies
- Atelier slash audiovisuel
Le projet se situe dans un hameau au cœur d’une zone naturelle protégée de la commune de Crac’h. La bâtisse, une ancienne longère à vocation agricole autrefois liée à l’élevage équin, a connu de nombreuses transformations au fil du temps. Son usage initialement agricole a peu à peu laissé place à un usage résidentiel. La lecture du bâti existant révèle que la plupart des modifications ont été réalisées de manière artisanale.
Avant d’entamer la conception, un diagnostic complet du bâti s’est avéré nécessaire afin d’identifier les faiblesses structurelles et de comprendre les pathologies présentes. Ce projet de rénovation, destiné à un usage d’habitation pour une famille, a soulevé par ailleurs des interrogations sur la manière de concilier le respect du bâti ancien avec les exigences actuelles en matière de performance énergétique.
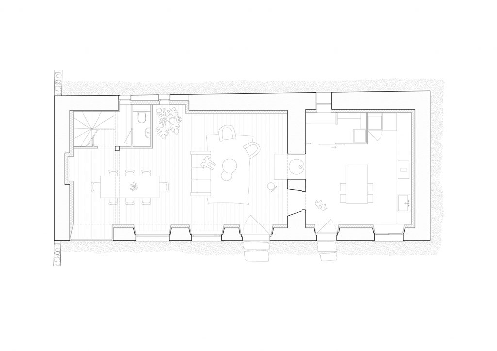
Le rez-de-chaussée regroupe les espaces de vie principaux, comme le séjour et la salle à manger, tandis que la cuisine est installée dans un volume distinct. À l’étage, les chambres et les salles d’eau ont été réorganisées afin d’optimiser l’orientation des pièces.
Après l’assainissement des murs de pierre, une isolation intérieure en laine de bois a été choisi pour garantir un confort thermique. La dalle du sol est isolée par des panneaux de liège expansé. L’ensemble des menuiseries extérieures a été remplacé et des panneaux solaires thermiques ont été posé pour la production d’eau chaude. Enfin, un poêle hybride, bois et granulés, permet de chauffer toute la surface du rez-de-chaussée en période hivernale.















